The Farnsworth House Plan is a shining example of modernist architecture, designed by Ludwig Mies van der Rohe in 1951. This iconic structure has captivated architects and design enthusiasts around the world with its minimalist aesthetic and innovative use of materials. In this article, we will explore the beauty and significance of the Farnsworth House Plan, as well as how you can download and save it for your own architectural inspiration.
Knowledge
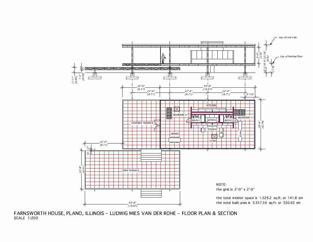
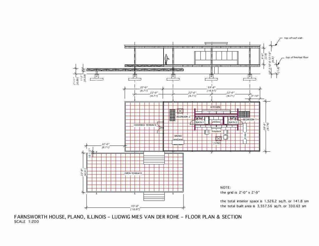
The Farnsworth House Plan is a single-story, glass-walled residence located in Plano, Illinois. It was commissioned by Dr. Edith Farnsworth as a weekend retreat and served as a showcase of modern design principles. The house is elevated on steel columns, creating a sense of floating above the surrounding landscape.
The open floor plan of the Farnsworth House allows for uninterrupted views of the natural surroundings and blurs the boundaries between indoor and outdoor spaces. The use of floor-to-ceiling glass walls was revolutionary at the time and remains a defining feature of the modernist movement.
Mies van der Rohe’s design philosophy of “less is more” is evident in every aspect of the Farnsworth House Plan. The simplicity of the materials – steel, glass, and travertine – creates a sense of harmony and purity in the space. The house is a study in proportion, balance, and precision, with every element carefully considered and executed.
Visiting the Farnsworth House is a truly immersive experience, allowing visitors to appreciate the genius of Mies van der Rohe’s design up close. The house has been meticulously preserved and is now open to the public as a museum, offering guided tours and educational programs on modern architecture.
How to download and save it
To download and save the Farnsworth House Plan for your own architectural projects, you can access detailed drawings and blueprints from reputable sources online. There are several websites and databases that offer high-quality scans of the original plans, allowing you to study and analyze the design in depth.
By studying the Farnsworth House Plan, you can gain valuable insights into the principles of modernist architecture and apply them to your own projects. The clean lines, open spaces, and seamless integration with nature exemplified by the Farnsworth House can inspire your own designs and help you create spaces that are both functional and beautiful.
Conclusion
In conclusion, the Farnsworth House Plan is a masterpiece of modern architecture that continues to inspire and influence designers to this day. Its timeless beauty and innovative design make it a must-see for anyone with an appreciation for architecture and design.
The Farnsworth House Plan appeals to a wide audience, from architects and designers to art enthusiasts and history buffs. Its significance in the history of modernist architecture cannot be overstated, and its influence can be seen in countless buildings and designs around the world.
In a market saturated with cookie-cutter designs and uninspired architecture, the Farnsworth House Plan stands out as a beacon of creativity and innovation. By studying and understanding its design principles, we can continue to push the boundaries of what is possible in architecture and design, creating spaces that are truly transformative and inspiring.





