Are you looking for the ideal home design that offers ample space and comfort within a limited footprint? Look no further than the 1200 Sq Ft 2 Bedroom House Plans. These plans are designed to maximize living space while maintaining a cozy and inviting atmosphere. In this article, we will explore the features and advantages of these house plans, as well as provide insights on how to download and save them for your future dream home project.
Knowledge
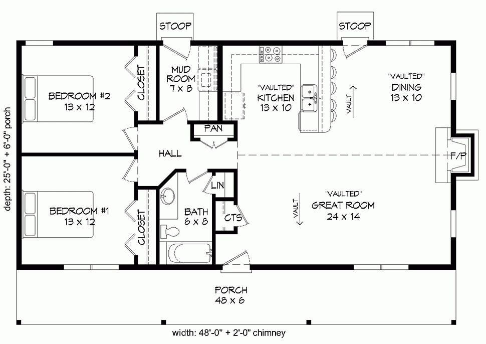
When it comes to choosing a house plan, size is a crucial factor. The 1200 Sq Ft 2 Bedroom House Plans strike the perfect balance between spaciousness and manageability. With two well-appointed bedrooms, a functional kitchen, a comfortable living area, and all the essential amenities, these house plans are ideal for small families, couples, or individuals looking for a cozy home.
One of the key advantages of the 1200 Sq Ft 2 Bedroom House Plans is their versatility. Whether you prefer a traditional layout or a more modern design, these plans can be customized to suit your preferences. From open-concept living spaces to designated dining areas, there are endless possibilities to make this house plan your own.
In addition to the layout, these house plans also prioritize functionality and convenience. Ample storage space, well-designed bathrooms, and practical kitchen layouts are just some of the features that make these plans highly desirable. With careful attention to detail and a focus on maximizing space, the 1200 Sq Ft 2 Bedroom House Plans offer a comfortable and efficient living environment.
How to download and save it
Downloading and saving the 1200 Sq Ft 2 Bedroom House Plans is easy and convenient. Simply visit a reputable house plan website or work with a professional architect to access a wide range of options. You can choose from pre-designed plans or request customizations to create a home that perfectly suits your needs and lifestyle.
Once you have selected the ideal house plan, you can download it in digital format for easy access and sharing. Save it to your computer or mobile device for future reference, and consult with your builder or contractor to bring your dream home to life. With the 1200 Sq Ft 2 Bedroom House Plans, you can embark on a journey to create a cozy and comfortable living space that reflects your unique style and preferences.
Conclusion
In conclusion, the 1200 Sq Ft 2 Bedroom House Plans offer a perfect blend of space and comfort for individuals and families alike. With a focus on functionality, versatility, and practicality, these house plans provide an ideal foundation for creating a cozy and inviting home. Whether you are looking to downsize, start a new family, or simply enjoy a comfortable living space, the 1200 Sq Ft 2 Bedroom House Plans are an excellent choice.
Overall, the key strengths of these house plans lie in their thoughtful design, efficient use of space, and customizable options. The target audience for the 1200 Sq Ft 2 Bedroom House Plans includes young families, empty nesters, couples, and individuals looking for a well-designed and comfortable living space.
As the housing market continues to evolve, the demand for compact and efficient homes is on the rise. The 1200 Sq Ft 2 Bedroom House Plans offer a practical solution for those seeking a balance between space and comfort. By choosing these house plans, you can create a home that meets your needs now and in the future, ensuring a cozy and inviting living environment for years to come.




