Are you considering building or renovating a mobile home and need some inspiration? Look no further than Mobile Home House Plans! These innovative and practical designs are perfect for those looking to make the most out of their mobile living space. In this article, we will delve into everything you need to know about Mobile Home House Plans, how to download and save them, and why they are essential for anyone looking to create their dream mobile home.
Knowledge
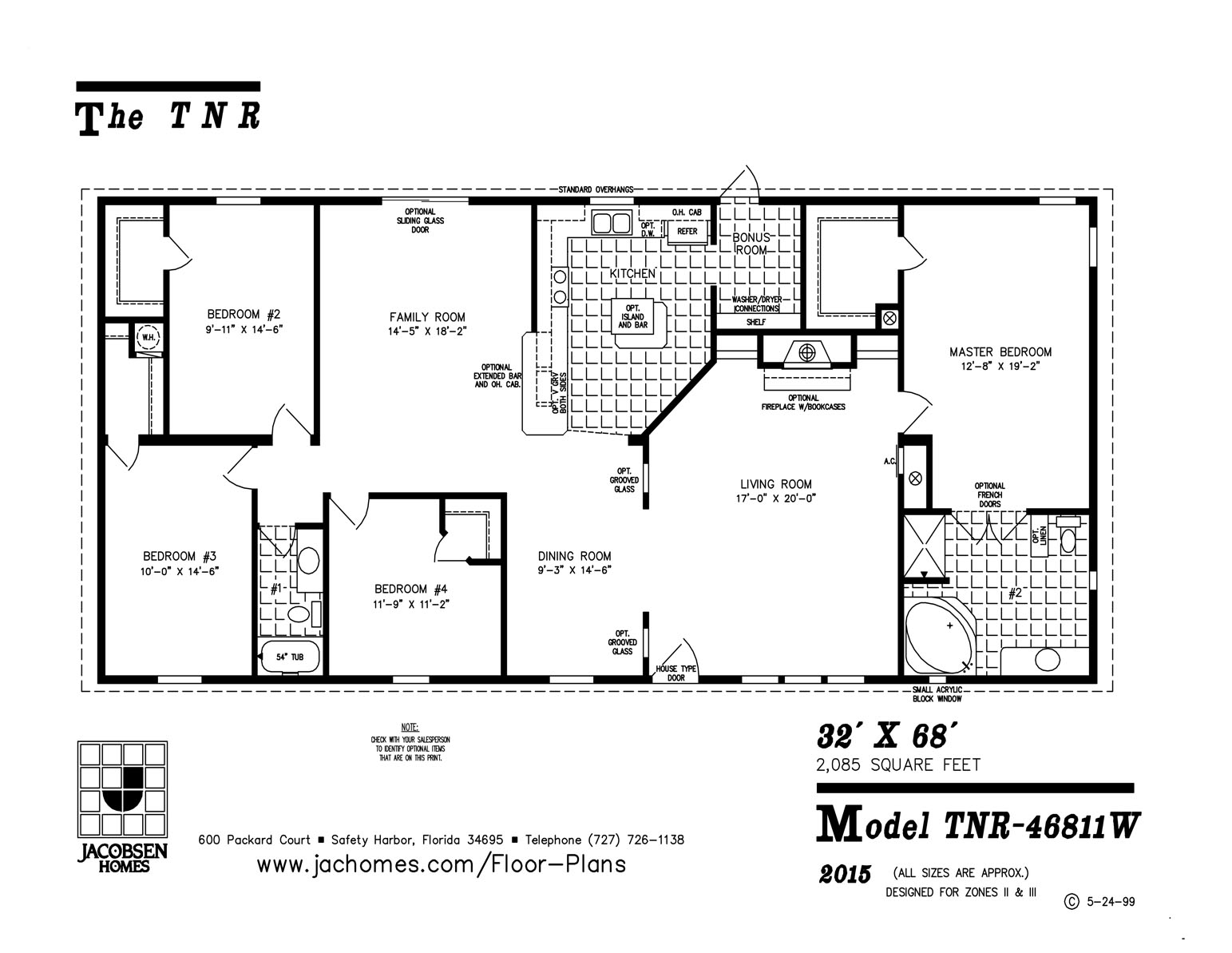
Mobile Home House Plans are detailed blueprints that outline the layout and design of a mobile home. These plans incorporate various features such as room dimensions, furniture placement, and structural elements to help you visualize and execute your mobile home project effectively. Whether you are looking to build a new mobile home from scratch or remodel your existing space, having a set of Mobile Home House Plans can streamline the process and ensure that your vision becomes a reality.
These plans come in a variety of styles and sizes to cater to different preferences and needs. From cozy single-bedroom layouts to spacious multi-story designs, Mobile Home House Plans offer versatility and customization options that traditional mobile home layouts may lack. Additionally, many plans include innovative features such as energy-efficient appliances, smart home technology, and sustainable materials to enhance the overall functionality and sustainability of your mobile home.
When choosing Mobile Home House Plans, it is essential to consider factors such as your budget, lifestyle requirements, and aesthetic preferences. Whether you prefer a modern minimalist design or a rustic cabin-inspired layout, there are plans available to suit every taste and style. By carefully reviewing and selecting the right plan for your needs, you can ensure that your mobile home project is a success.
How to download and save it
Downloading and saving Mobile Home House Plans is a straightforward process that can be done online through various websites and platforms. Many websites offer a wide selection of plans for purchase or free download, allowing you to browse and choose the one that best fits your needs. Once you have selected a plan, simply follow the instructions provided on the website to download and save the file to your device.
It is essential to save your Mobile Home House Plans in a secure location where you can easily access them throughout the construction or renovation process. Consider creating a digital folder or printing out a hard copy of the plans to refer to as needed. Having easy access to your plans will help you stay organized and on track with your mobile home project, ensuring that everything progresses smoothly and according to your vision.
Conclusion
In conclusion, Mobile Home House Plans are an invaluable resource for anyone looking to build or renovate a mobile home. With their detailed layouts, innovative features, and customization options, these plans provide the foundation for creating a functional and beautiful mobile living space. Whether you are a first-time builder or a seasoned renovator, Mobile Home House Plans offer the guidance and inspiration you need to bring your vision to life.
Key strengths of Mobile Home House Plans include their versatility, customization options, and sustainability features. These plans cater to a wide range of preferences and needs, making them suitable for individuals and families alike. By utilizing Mobile Home House Plans, you can create a mobile home that reflects your unique style and meets your practical requirements.
Ultimately, Mobile Home House Plans are essential for anyone looking to embark on a mobile home project. With their comprehensive design layouts and practical guidance, these plans streamline the construction or renovation process and ensure that your mobile home is both functional and aesthetically pleasing. Whether you are looking to downsize, upgrade, or simply enhance your mobile living space, Mobile Home House Plans are the key to achieving your goals.





