When it comes to finding the ideal home for your family, the search can often feel overwhelming. However, with house plans for 3 bedroom ranch-style homes, you can enjoy the perfect blend of comfort and functionality. These spacious and versatile layouts offer ample living space for families of all sizes, making them a popular choice among homeowners. In this article, we will explore everything you need to know about house plans for 3 bedroom ranch-style homes, including their appeal, key features, and how to download and save them for your future dream home.
Knowledge
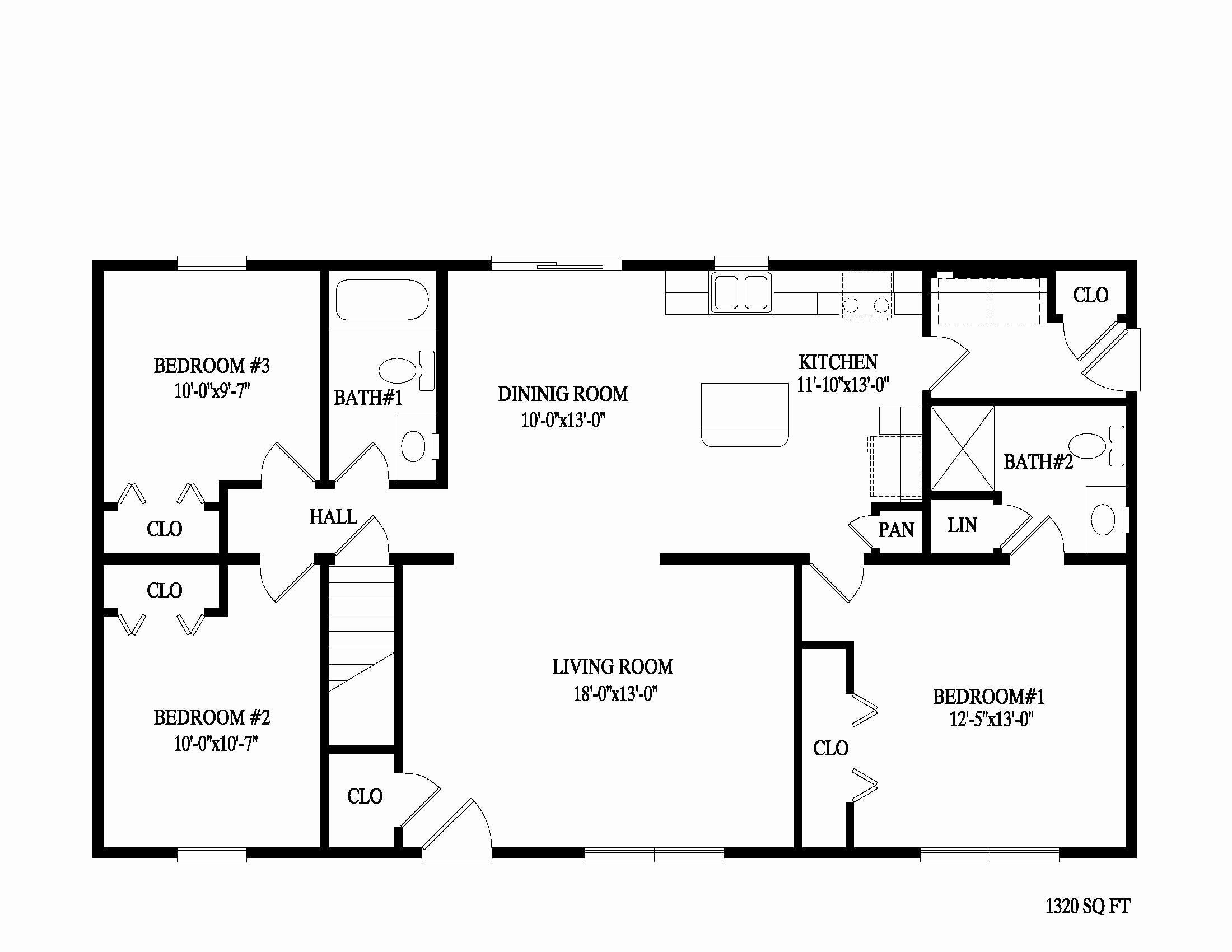
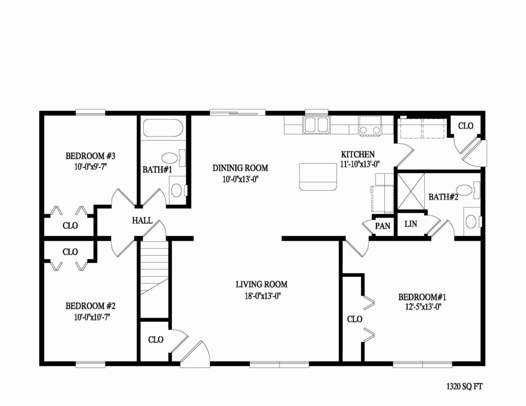
House plans for 3 bedroom ranch-style homes are designed to provide a comfortable and functional living space for families. These homes typically feature an open floor plan, with the kitchen, dining area, and living room flowing seamlessly together. The three bedrooms offer plenty of space for family members or guests, while the ranch-style layout ensures easy access to all areas of the home. Additionally, many house plans for 3 bedroom ranch homes include a master suite with a private bathroom, walk-in closet, and other desirable features.
One of the key advantages of choosing a 3 bedroom ranch-style home is the flexibility it offers. Whether you’re a growing family in need of extra space or empty nesters looking to downsize, these homes can be customized to suit your needs. From adding a home office or playroom to incorporating energy-efficient features, the possibilities are endless with house plans for 3 bedroom ranch homes.
Another appealing aspect of 3 bedroom ranch-style homes is their timeless aesthetic. With their low-pitched roofs, wide eaves, and simple yet elegant design, these homes exude a classic charm that never goes out of style. Whether you prefer a traditional or modern look, there are countless customization options available to make your 3 bedroom ranch home uniquely yours.
When it comes to the layout of house plans for 3 bedroom ranch homes, you can expect to find a well-defined separation between the living areas and sleeping quarters. This ensures privacy and comfort for all residents, making it easy to relax and unwind in your own space. Additionally, many 3 bedroom ranch homes feature outdoor living areas such as patios or decks, allowing you to enjoy the beauty of nature right outside your door.
How to download and save it
Downloading and saving house plans for 3 bedroom ranch-style homes is easy and convenient. Many websites offer a wide selection of pre-designed plans that you can browse and purchase online. Once you’ve found the perfect plan for your needs, simply download the digital files and save them to your computer or device for future reference.
If you prefer a more personalized approach, you can also work with a professional architect or designer to create a custom 3 bedroom ranch home plan. They will take your specific needs and preferences into account to design a home that perfectly suits your lifestyle. Whether you choose a pre-designed plan or opt for a custom design, be sure to review the details carefully and make any necessary adjustments before moving forward with construction.
Conclusion
In conclusion, house plans for 3 bedroom ranch-style homes offer the perfect combination of comfort, functionality, and timeless appeal. Ideal for families of all sizes, these homes provide ample living space and flexibility to meet your needs. Whether you’re looking to downsize or upgrade, a 3 bedroom ranch home is a versatile option that can be customized to suit your preferences.
With their classic design and modern amenities, house plans for 3 bedroom ranch homes are a popular choice among homeowners. Whether you choose a pre-designed plan or opt for a custom design, you can rest assured that your new home will provide the comfort and style you desire. Consider exploring the world of 3 bedroom ranch homes for your next housing project and create a space that you and your family will love for years to come.





