French Chateau Style House Plans: Elegant and Timeless Designs

French Chateau Style House Plans are known for their elegance, sophistication, and timeless appeal. These architectural designs draw inspiration from the grand and luxurious chateaus found in the French countryside, creating a sense of opulence and grandeur. If you are looking to build a home that exudes Old World charm and luxury, French Chateau Style House Plans are the perfect choice for you. In this article, we will delve into the details of these house plans, discuss their key features, and explore why they are so popular among homeowners.

Grand French Country Chateau 17751LV Architectural Designs House

Knowledge

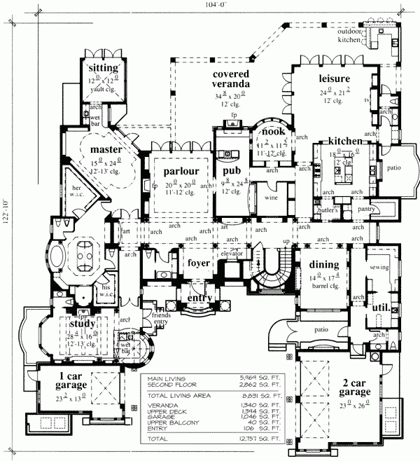
French Chateau Style House Plans typically feature steeply pitched roofs, intricate detailing, and symmetrical facades. These homes often include elements such as turrets, balconies, and grand entryways that create a sense of grandeur and elegance. The interiors of French Chateau Style homes are equally impressive, with high ceilings, large windows, and elaborate moldings that add to the overall luxurious feel of the space.

Chateau Style House Luxurious French Style Home 5 Bedrms

One of the key characteristics of French Chateau Style House Plans is their emphasis on outdoor living. These homes often feature expansive terraces, courtyards, and lush gardens that provide a seamless transition between indoor and outdoor spaces. This focus on outdoor living allows homeowners to enjoy the natural beauty of their surroundings while still feeling connected to the interior of their home.

When it comes to floor plans, French Chateau Style homes are typically spacious and well-appointed. These homes often feature open-concept living areas, gourmet kitchens, and luxurious master suites that provide a comfortable and stylish living environment. Whether you are looking for a cozy cottage or a sprawling estate, there are French Chateau Style House Plans to suit every taste and lifestyle.

Alpha Builders Group French Chateau Floor Plan From ABG Alpha

How to download and save it

When it comes to downloading and saving French Chateau Style House Plans, there are several options available to you. Many websites offer a wide selection of house plans in various styles, including French Chateau. You can browse through these websites, search for French Chateau Style House Plans, and select the one that best suits your needs and preferences.

Once you have found the perfect house plan, you can download it directly from the website and save it to your computer or device. Some websites may require you to create an account or pay a fee to access their house plans, so be sure to read the terms and conditions before downloading any plans.

Conclusion

In conclusion, French Chateau Style House Plans are a popular choice for homeowners looking to build a home that exudes elegance and sophistication. With their grand facades, luxurious interiors, and emphasis on outdoor living, these house plans offer a timeless and stylish living environment for those who appreciate the finer things in life.

French Chateau Style House Plans are ideal for individuals who appreciate classic architecture and luxurious living spaces. Whether you are looking to build a cozy cottage or a grand estate, French Chateau Style House Plans can help you achieve the home of your dreams.

In today’s competitive real estate market, having a home that stands out from the rest is essential. French Chateau Style House Plans offer a unique and luxurious living experience that is sure to impress potential buyers and increase the value of your property. If you are looking to build a home that is elegant, timeless, and sophisticated, French Chateau Style House Plans are the perfect choice for you.

Leave a Reply

Related Post

House Floor Plans 2 Bedroom 2 Bath

Explore the Beauty of 2 Bedroom And 2 Bathroom House Plans

Welcome to a world where comfort and style come together in perfect harmony. The allure of 2 bedroom and 2 bathroom house plans is undeniable, offering a cozy yet spacious living environment for individuals, couples, and small families alike. In this article, we will delve into the intricacies of these house plans, exploring their features, […]

Maximizing Every Inch Smart Design Tips For A 600 Sq Ft House In India

600 Sq Ft House Plans: The Perfect Small Home Solution

Are you looking for a cozy and efficient living space that doesn’t compromise on style or functionality? Look no further than 600 sq ft house plans. These compact yet well-designed homes are gaining popularity for their affordability, sustainability, and smart use of space. In this article, we will delve into everything you need to know […]

3 Bedroom House Floor Plans With Pictures Pdf Viewfloor co

House Plans For Three Bedroom Homes: Your Ultimate Guide

Are you in the market for a three-bedroom home but struggling to find the perfect layout that suits your needs? Look no further! In this comprehensive guide, we will dive into the world of house plans for three-bedroom homes, exploring various layouts, designs, and features that will help you create your dream home. From modern […]