Double wide trailer house plans have become increasingly popular in recent years due to their affordability, versatility, and modern design options. Whether you are looking to downsize, build a vacation home, or simply want a more cost-effective housing solution, double wide trailer house plans offer a wide range of benefits.
Knowledge
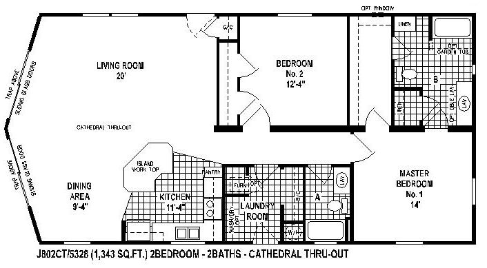
When it comes to double wide trailer house plans, there are several key factors to consider. These plans typically offer more space than traditional single-wide trailers, making them ideal for families or individuals looking for extra room. Additionally, double wide trailers often feature modern amenities such as open floor plans, large windows, and high ceilings, creating a bright and airy living environment.
One of the main advantages of double wide trailer house plans is their cost-effectiveness. Building a double wide trailer is typically more affordable than constructing a traditional home, making it an attractive option for budget-conscious individuals. Additionally, double wide trailers are often more energy-efficient, helping homeowners save on utility costs in the long run.
Another important consideration when choosing double wide trailer house plans is customization options. From choosing the layout and design features to selecting finishes and fixtures, there are endless possibilities for personalizing your double wide trailer to suit your unique style and needs.
It is also worth noting that double wide trailers are typically built off-site in a controlled environment, which can help reduce construction time and minimize weather-related delays. This means that you can move into your new double wide trailer sooner and with less hassle than with traditional construction methods.
How to download and save it
When it comes to finding double wide trailer house plans, there are several resources available online. Many websites offer a wide selection of pre-designed plans that you can purchase and download instantly. Alternatively, you can work with a professional architect or designer to create a custom plan that meets your specific needs and preferences.
Once you have selected a double wide trailer house plan, it is important to carefully review the details and specifications to ensure that it meets your requirements. Pay close attention to the layout, dimensions, and features included in the plan to make sure it aligns with your vision for your new home.
After downloading or purchasing your chosen double wide trailer house plan, you can begin the process of obtaining any necessary permits and approvals before starting construction. Be sure to work with a reputable contractor or builder who has experience with double wide trailers to ensure that your project is completed successfully.
Conclusion
In conclusion, double wide trailer house plans offer a practical and affordable housing solution for individuals and families alike. With their spacious layouts, modern amenities, and customization options, double wide trailers provide a comfortable and stylish living environment that can be tailored to suit your unique needs.
Overall, double wide trailer house plans are an excellent choice for those looking to build a new home without breaking the bank. Whether you are looking for a permanent residence or a vacation getaway, double wide trailers offer a cost-effective and efficient housing solution that is sure to meet your needs.




