Bungalow House Floor Plans

Bungalow House Floor Plans are essential tools for anyone looking to design or renovate their living space. They provide a clear visual representation of a home’s layout, helping individuals make informed decisions. People often search for these plans online to streamline their building process and enhance productivity.

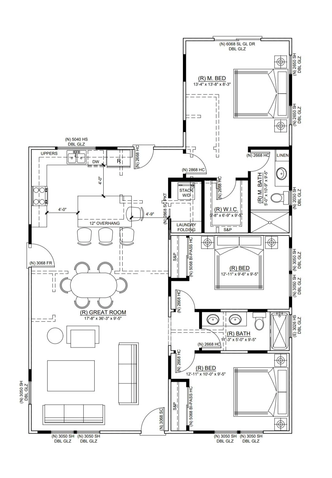
These floor plans are practical because they simplify complex tasks like space planning and furniture arrangement. By offering a detailed view of dimensions and flow, Bungalow House Floor Plans help homeowners visualize their dream spaces without the guesswork.

Floor Plan For 1890s California Bungalow R floorplan

Practical Uses of Bungalow House Floor Plans

Bungalow House Floor Plans serve various practical purposes for different users. Students and teachers often utilize them for projects, while planners and small business owners rely on them to create efficient workspaces. Parents can also benefit by designing functional family areas that cater to everyone’s needs.

In real-life situations, Bungalow House Floor Plans help save time during renovations. For instance, a homeowner can quickly assess how to maximize space for a growing family or create an inviting area for entertaining guests. This efficiency leads to better organization and planning.

Even in our digital age, Bungalow House Floor Plans remain popular due to their tangible benefits. They provide a physical reference that digital tools sometimes lack, making it easier for individuals to engage with their designs. This hands-on approach fosters creativity and ensures that every detail is considered.

Ultimately, Bungalow House Floor Plans are invaluable resources that enhance the planning process. Their versatility makes them suitable for various users, ensuring that everyone can create a space that meets their unique needs and preferences.

These 26 Gorgeous Vintage Craftsman House Plans Will Make You Want To Build One The Old fashioned Way Click Americana

Bungalow Style House Plan 3 Beds 2 Baths 1504 Sq Ft Plan 137 270 Eplans

48739 The House Plan Company

Bungalow House 2 Bedrms 1 Baths 890 Sq Ft Plan 123 1109

Leave a Reply

Related Post

Free Notary Copy Certification Form Template To Edit Online

Printable Notary Certificate Form

A Printable Notary Certificate Form is a crucial document that many people seek online. It serves as an official record for notarizing signatures, ensuring that important documents are legally binding. This form enhances productivity and organization by streamlining the notarization process. These forms are practical tools in everyday life, simplifying tasks that require verification. Whether […]

How To Fill Out A Driver Vehicle Inspection Report

Driver Vehicle Inspection Report Template

A Driver Vehicle Inspection Report Template is a structured document designed to help individuals and businesses ensure their vehicles are safe and compliant. Many people search for it online to streamline their inspection processes, enhancing productivity and organization. These templates serve as practical tools in everyday life, simplifying the often tedious task of vehicle inspections. […]

Fillable Typeable And Printable Sermon Notes And S O A P Bible Stud Loving Christ Ministries

Printable Bible Study Notes

Printable Bible Study Notes are essential tools for anyone looking to deepen their understanding of scripture. Many people search for these resources online to enhance their study sessions, improve productivity, and stay organized during their spiritual journey. These notes are practical because they simplify the process of studying the Bible. By providing structured formats, they […]