Are you in the market for a spacious and functional home that caters to your family’s needs? Look no further than 4 Bedroom 3 Bathroom House Plans. These floor plans offer the ideal layout for families of all sizes, providing ample space for everyone to live comfortably and enjoy their own privacy. In this article, we will delve into the details of these house plans, discuss their appeal, and explain why they are the perfect choice for your next home.
Knowledge
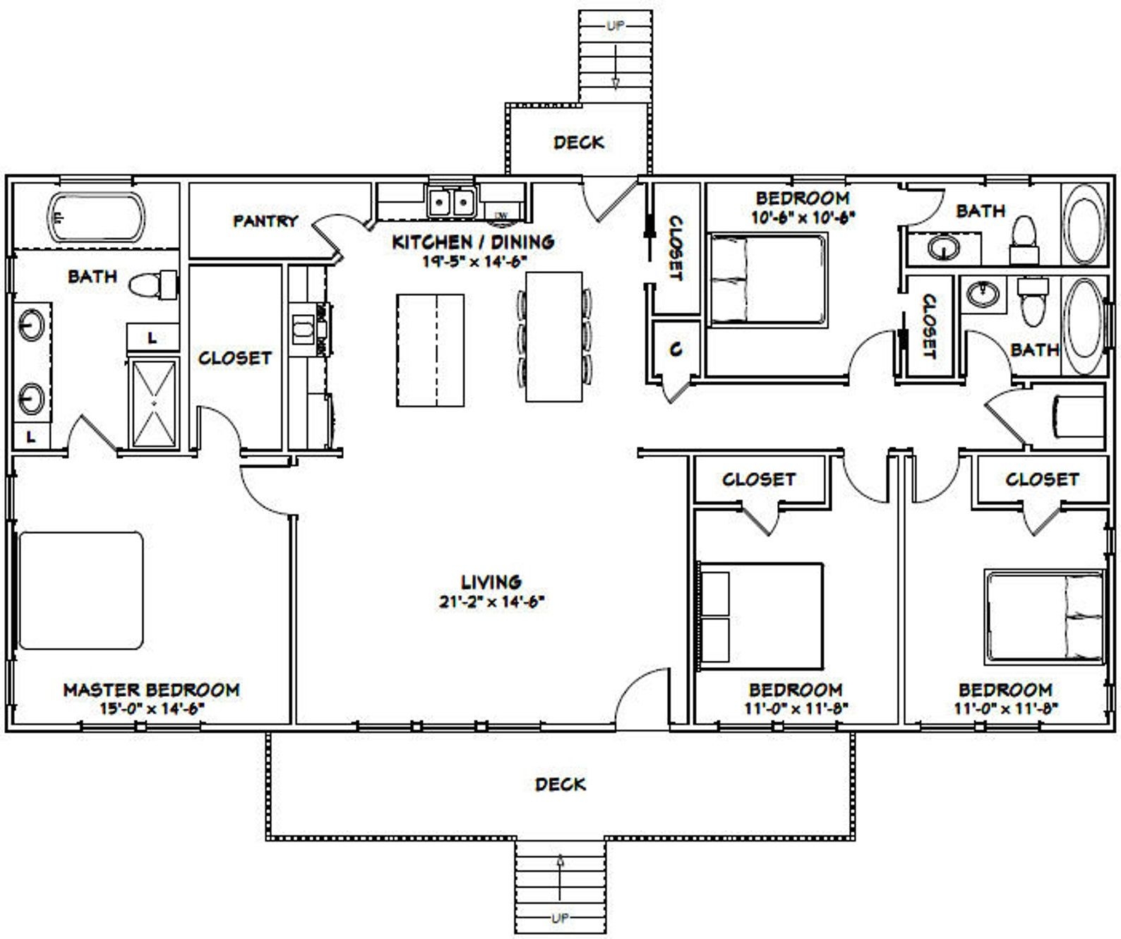
When it comes to selecting the right house plan for your family, the number of bedrooms and bathrooms is a crucial factor to consider. 4 Bedroom 3 Bathroom House Plans strike the perfect balance between space and functionality. With four bedrooms, you have the flexibility to designate rooms for family members, guests, a home office, or even a hobby room. The addition of three bathrooms ensures that there is no morning rush or waiting in line for the shower, making it convenient for everyone in the household.
These house plans typically feature a master suite with an attached bathroom, providing a retreat for the homeowners to relax and unwind. The remaining bedrooms are strategically placed to offer privacy and comfort, while the shared living spaces such as the kitchen, living room, and dining area are designed for family gatherings and entertaining guests.
One of the key advantages of 4 Bedroom 3 Bathroom House Plans is their versatility. Whether you have a growing family, frequent visitors, or simply desire extra space for hobbies and activities, these floor plans can accommodate your needs. Additionally, the layout allows for customization and personalization to suit your lifestyle and preferences.
How to download and save it
Obtaining 4 Bedroom 3 Bathroom House Plans is easy and convenient. You can explore a variety of options online through reputable house plan websites or work with a professional architect to create a customized plan that meets your specific requirements. Once you have selected the ideal house plan, you can download it in digital format and save it for future reference or modifications.
Conclusion
In conclusion, 4 Bedroom 3 Bathroom House Plans offer the perfect combination of space, functionality, and flexibility for modern families. Their practical layout and thoughtful design make them an excellent choice for homeowners looking to create their dream home. Whether you are a growing family, empty nesters, or individuals who value comfort and convenience, these house plans cater to a wide range of needs and preferences.
Ultimately, the appeal of 4 Bedroom 3 Bathroom House Plans lies in their ability to provide a comfortable and inviting living environment for you and your loved ones. With ample space, privacy, and convenience, these house plans are designed to enhance your quality of life and create lasting memories in your new home.





