Are you in the market for a new home and considering the charm of a ranch-style house? Look no further than the allure of 3 Br Ranch House Plans. These plans offer a perfect blend of comfort, style, and functionality, making them a popular choice for many homeowners. In this article, we will delve into the world of 3 Br Ranch House Plans, exploring their appeal, key features, and why they might be the ideal choice for your next home.
Knowledge
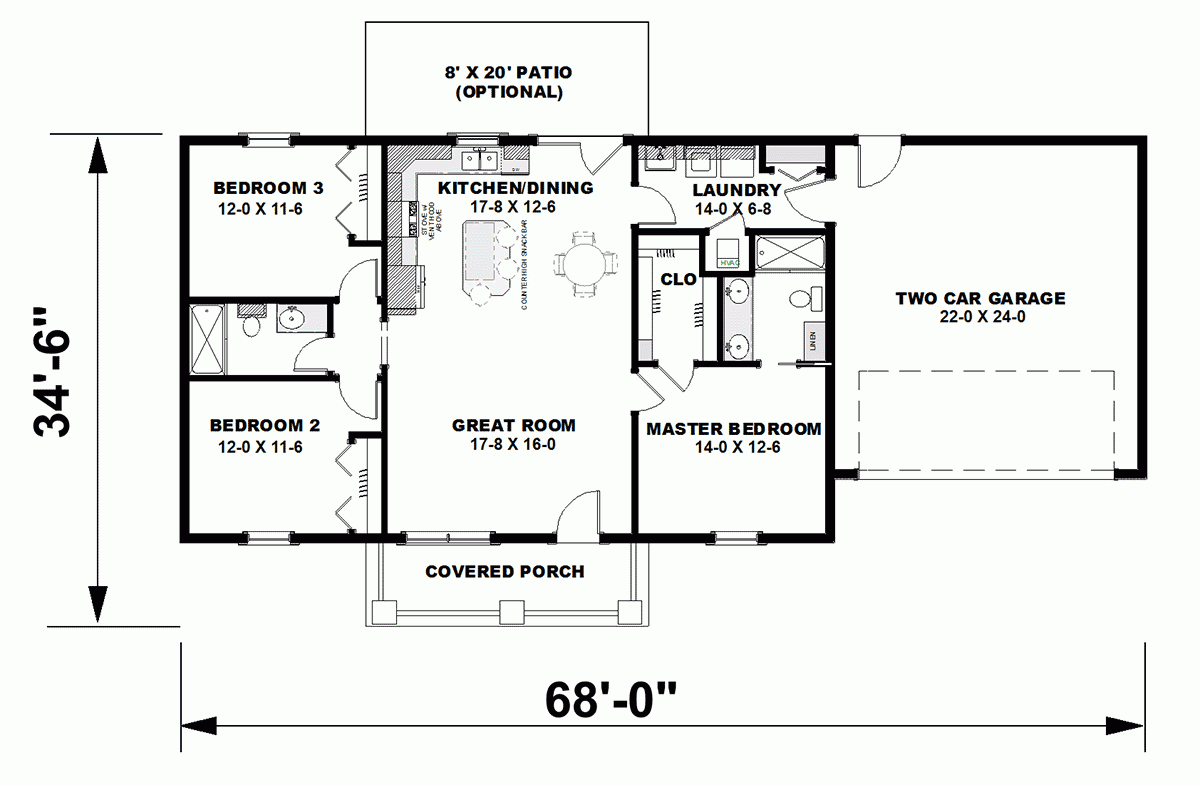
When it comes to 3 Br Ranch House Plans, there are several key features that set them apart from other home styles. These plans typically feature a single-story layout, making them an excellent option for individuals who prefer easy accessibility and convenience. The open floor plan design of a ranch-style house allows for seamless flow between the living spaces, creating a warm and inviting atmosphere for homeowners and guests alike.
One of the main attractions of 3 Br Ranch House Plans is the emphasis on outdoor living. Many ranch-style homes feature expansive porches, patios, or decks that provide the perfect setting for outdoor entertaining or simply relaxing and enjoying nature. The spacious yards often found with ranch-style homes offer plenty of room for gardening, play areas for children, or even the addition of a swimming pool.
Another advantage of 3 Br Ranch House Plans is their versatility. Whether you prefer a traditional ranch-style home or a more modern interpretation, there are countless design options available to suit your tastes and lifestyle. From classic ranch houses with brick facades to sleek, contemporary designs with large windows and clean lines, the possibilities are endless when it comes to customizing your dream home.
In terms of interior layout, 3 Br Ranch House Plans typically feature a master suite separate from the other bedrooms, providing privacy and tranquility for homeowners. The open kitchen, dining, and living areas are perfect for family gatherings or entertaining guests, while the additional bedrooms offer flexibility for use as a home office, guest room, or children’s playroom.
How to download and save it
Conclusion
In conclusion, 3 Br Ranch House Plans offer a unique combination of style, comfort, and functionality that make them an attractive choice for many homeowners. The single-story layout, emphasis on outdoor living, and versatility of design options are just a few of the reasons why ranch-style homes continue to be a popular option in the housing market. Whether you are a first-time homebuyer, empty nester, or growing family, a 3 Br Ranch House Plan could be the perfect fit for your needs.
Overall, the timeless appeal and practicality of ranch-style homes make them a wise investment for anyone looking to build their dream home. With their seamless indoor-outdoor living spaces, customizable design options, and convenient layout, 3 Br Ranch House Plans offer a comfortable and stylish living environment for homeowners of all ages. Consider exploring the beauty of 3 Br Ranch House Plans for your next home and experience the joys of ranch-style living firsthand.





