Are you in the market for a new home and looking for the perfect 20X30 house plan to bring your vision to life? Look no further! In this comprehensive guide, we will delve into the world of 20X30 house plans, exploring their appeal, design options, and everything you need to know to make an informed decision. Whether you are a first-time homebuyer or a seasoned homeowner looking to downsize, the versatility and efficiency of a 20X30 house plan make it an ideal choice for any lifestyle.
Knowledge
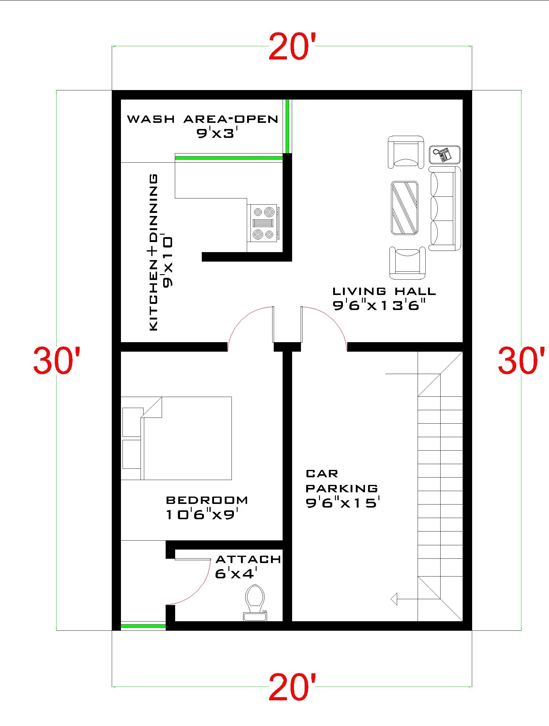
When it comes to choosing the right 20X30 house plan for your needs, there are several key factors to consider. From layout and design to budget and customization options, understanding the ins and outs of 20X30 house plans is essential to finding the perfect fit for your lifestyle. These plans typically feature two bedrooms, a bathroom, a kitchen, and a living area, making them ideal for small families, couples, or individuals looking for a cozy and efficient living space.
One of the main advantages of a 20X30 house plan is its compact size, which allows for easy maintenance and lower utility costs. Additionally, the open floor plan design of many 20X30 house plans creates a sense of spaciousness and flow, making the most of every square foot. Whether you prefer a traditional layout or a more modern design, there are countless customization options available to suit your unique style and preferences.
Another important consideration when choosing a 20X30 house plan is the orientation of the home on your lot. By carefully considering factors such as sunlight, wind direction, and views, you can optimize the energy efficiency and overall comfort of your home. Whether you are building in an urban neighborhood or a rural setting, the right placement of your 20X30 house plan can enhance both the aesthetic and functionality of your living space.
How to download and save it
When it comes to downloading and saving your chosen 20X30 house plan, there are several options available to make the process quick and easy. Many websites offer a wide selection of pre-designed 20X30 house plans that can be purchased and downloaded directly to your computer. Alternatively, you can work with a professional architect or designer to create a custom 20X30 house plan that perfectly suits your needs and preferences.
Once you have selected the perfect 20X30 house plan for your dream home, be sure to save a copy in a secure location for future reference. Whether you choose to print out a hard copy or store it digitally, having easy access to your 20X30 house plan will streamline the building process and ensure that your vision is brought to life with precision and accuracy.
Conclusion
In conclusion, 20X30 house plans offer a versatile and efficient solution for anyone in search of a cozy and comfortable living space. With their compact size, open floor plan design, and endless customization options, 20X30 house plans can be tailored to fit your unique style and preferences. Ideal for small families, couples, or individuals looking to downsize, a 20X30 house plan is a practical and budget-friendly choice for creating your dream home.
Key strengths of 20X30 house plans include their affordability, energy efficiency, and customizable design options. Whether you are building in an urban setting or a rural location, a 20X30 house plan can be adapted to suit your needs and enhance the overall functionality of your living space. With careful consideration of layout, orientation, and design elements, you can create a 20X30 house plan that is both stylish and sustainable.
As the housing market continues to evolve, the demand for smaller, more efficient living spaces is on the rise. By choosing a 20X30 house plan for your next home, you can enjoy the benefits of a compact and cost-effective living solution without sacrificing style or comfort. Whether you are a first-time homebuyer or a seasoned homeowner, a 20X30 house plan is a smart investment in your future and a reflection of your unique lifestyle and preferences.





