2 Br 1 Bath House Plans: Your Ultimate Guide to Affordable Home Design

Are you in the market for a new home but feeling overwhelmed by the high costs of custom-built houses? Look no further than 2 Br 1 Bath house plans. These budget-friendly options offer the perfect balance of space and functionality without breaking the bank. In this comprehensive guide, we will explore everything you need to know about 2 Br 1 Bath house plans, from their unique features to how you can download and save them for your future dream home.

2 Bedroom 1 Bath Cottage Architectural Plans 797 SF 30 39 x27 39 Tiny

Knowledge

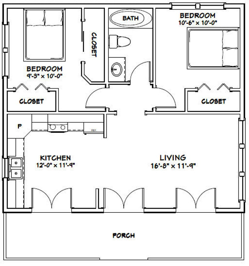
2 Br 1 Bath house plans are an ideal choice for individuals or small families looking to build a cozy and practical home. These plans typically feature two bedrooms, a shared bathroom, a living room, and a kitchen. Despite their compact size, 2 Br 1 Bath houses are designed to maximize every inch of space, offering comfortable living areas without unnecessary excess.

30x26 House 2 Bedroom 1 Bath 780 Sq Ft PDF Floor Plan Etsy In 2020

One of the main advantages of 2 Br 1 Bath house plans is their affordability. By opting for a pre-designed plan rather than a custom build, you can save significant costs on architectural fees and design consultations. Additionally, the straightforward layout of these plans makes them easy to build, further reducing construction expenses.

When choosing a 2 Br 1 Bath house plan, consider your lifestyle needs and future growth. While these plans are perfect for singles or couples, they may not accommodate a growing family. However, with a bit of creativity and customization, you can always expand or modify the design to suit your changing needs.

600 Sq Ft House Plans 2 Bedroom 1 Bath

How to download and save it

Downloading and saving 2 Br 1 Bath house plans is a simple process that can be done online. Many websites offer a wide selection of pre-designed house plans, including 2 Br 1 Bath options. To find the perfect plan for your needs, browse through different designs, layouts, and sizes until you find one that fits your vision.

Once you have chosen a 2 Br 1 Bath house plan, you can typically purchase and download it directly from the website. Some platforms may offer customization options or additional services for an extra fee. Make sure to review the terms and conditions before making a purchase to ensure that you have full access to the plan and any necessary support.

Conclusion

In conclusion, 2 Br 1 Bath house plans are an excellent choice for individuals and small families seeking an affordable and functional living space. Their compact design, cost-effectiveness, and adaptability make them a popular option for those looking to build their dream home without breaking the bank. Whether you are a first-time homeowner or downsizing for retirement, 2 Br 1 Bath house plans offer the perfect combination of style and practicality.

As the housing market continues to evolve, affordable and sustainable housing solutions like 2 Br 1 Bath house plans will become increasingly important. By embracing these innovative designs, homeowners can enjoy the benefits of a well-designed home that meets their needs and budget. Invest in a 2 Br 1 Bath house plan today and take the first step towards realizing your dream of homeownership.

Leave a Reply

Related Post

3 Bed Ranch House Plan With Open concept Living 82269KA

3 Bedroom Ranch House Floor Plans: Your Perfect Home Design Solution

Looking for the ideal layout for your future home? Consider the charm and functionality of 3 Bedroom Ranch House Floor Plans. This classic design offers a spacious and versatile living space that caters to various lifestyle needs. In this article, we will delve into the details of these floor plans, explaining their appeal and providing […]

Japanese Style House Plan Floor Plans Concept Ideas

Exploring the Intriguing World of Japanese House Plans

Japanese house plans have been gaining popularity in recent years for their unique design elements and functional layouts. These plans offer a perfect blend of traditional Japanese architecture with modern aesthetics, creating a serene and harmonious living space. In this article, we will delve into the world of Japanese house plans, exploring their appeal, key […]

10 Gorgeous Ranch House Plans Ideas Ranch House Floor Plans Ranch

Ranch House Plan: A Perfect Blend of Style and Functionality

Ranch house plans have been a popular choice for homeowners looking for a perfect blend of style and functionality. These plans offer a single-story layout with a spacious and open design that appeals to a wide range of homeowners. In this article, we will explore everything you need to know about ranch house plans, including […]