Are you looking to build a cozy guest house with 2 bedrooms? Look no further! In this article, we will walk you through everything you need to know about 2 Bedroom Guest House Floor Plans. From layout options to design tips, we’ve got you covered.
Knowledge
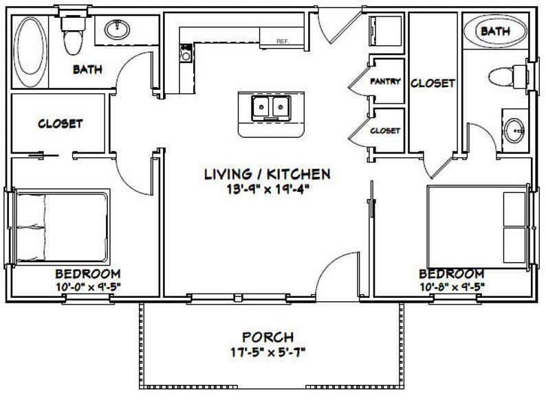
When it comes to 2 Bedroom Guest House Floor Plans, there are plenty of options to choose from. Whether you prefer a traditional layout with bedrooms on either side of the living space or a more modern open concept design, the possibilities are endless. Consider factors such as the size of the bedrooms, the placement of windows for natural light, and the overall flow of the space.
One popular layout for 2 Bedroom Guest House Floor Plans is the “L” shaped design, where the bedrooms are located on one side of the house and the living area and kitchen are on the other. This layout maximizes privacy for the bedrooms while still allowing for an open and airy living space.
Another option to consider is a split bedroom design, where the bedrooms are located on opposite ends of the house. This layout is ideal for guests or family members who prefer more privacy, as each bedroom has its own dedicated space.
When it comes to design tips for 2 Bedroom Guest House Floor Plans, consider incorporating elements such as high ceilings, large windows, and outdoor living spaces. These features can help create a sense of spaciousness and connection to the outdoors, making your guest house feel inviting and welcoming.
How to download and save it
Conclusion
2 Bedroom Guest House Floor Plans offer a versatile and practical solution for accommodating guests or family members. With a variety of layout options and design tips to choose from, you can create a space that is comfortable, functional, and stylish. This type of guest house is perfect for those looking to add extra living space to their property without the need for a full-scale renovation.
In conclusion, 2 Bedroom Guest House Floor Plans are a great investment for homeowners who want to enhance their property’s value and usability. Whether you use it as a guest house, home office, or rental unit, the possibilities are endless. Consider incorporating some of the design tips mentioned in this article to create a space that is truly unique and tailored to your needs.




