Are you in the market for a new home or looking to renovate your current space? 2 Bed 2 Bath House Floor Plans are a popular choice for many homeowners due to their practicality and versatility. In this comprehensive guide, we will explore everything you need to know about 2 Bed 2 Bath House Floor Plans, from their layout to design options, and more. Let’s dive in!
Knowledge
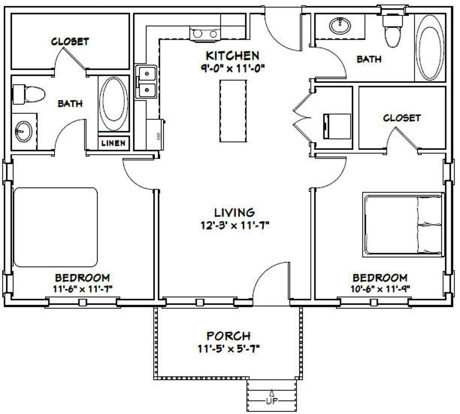
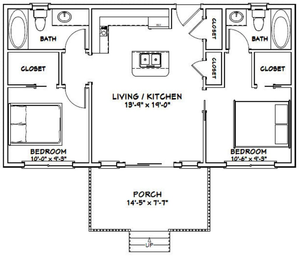
2 Bed 2 Bath House Floor Plans are ideal for small families, couples, or individuals looking for a comfortable and functional living space. The layout typically includes two bedrooms, two bathrooms, a living room, kitchen, and dining area. This layout provides a perfect balance between space and privacy, making it a popular choice for many homeowners.
When it comes to design options, 2 Bed 2 Bath House Floor Plans offer a wide range of possibilities. From open-concept layouts to traditional designs, there are plenty of options to choose from to suit your personal style and preferences. Whether you prefer a modern, sleek design or a more cozy and traditional feel, you can customize your floor plan to create the perfect home for you.
One of the key advantages of 2 Bed 2 Bath House Floor Plans is their flexibility. Whether you are looking to downsize, accommodate guests, or create a home office space, these floor plans can easily be adapted to meet your changing needs. With the right design and layout, you can make the most of your space and create a home that is both functional and stylish.
How to download and save it
Looking to download and save 2 Bed 2 Bath House Floor Plans for your future home project? There are several resources available online where you can find a wide selection of floor plans to choose from. Websites like Houzz, Architectural Designs, and Houseplans.com offer a variety of 2 Bed 2 Bath House Floor Plans that you can download and save for your reference.
Once you have found the perfect floor plan for your needs, you can easily download and save it to your computer or mobile device for easy access. Many websites offer both free and paid options for downloading floor plans, so you can choose the option that best fits your budget and requirements. With just a few clicks, you can have access to a wide range of 2 Bed 2 Bath House Floor Plans to help you plan and design your dream home.
Conclusion
In conclusion, 2 Bed 2 Bath House Floor Plans are a popular choice for homeowners looking for a practical and versatile living space. With their flexible layout and design options, these floor plans offer the perfect balance of space and privacy for small families, couples, or individuals. Whether you are looking to downsize, accommodate guests, or create a home office space, 2 Bed 2 Bath House Floor Plans can be easily adapted to meet your changing needs.
Overall, the key strengths of 2 Bed 2 Bath House Floor Plans lie in their functionality, flexibility, and customization options. They are perfect for homeowners who value both comfort and style in their living space. The target audience for these floor plans includes small families, couples, or individuals looking for a cozy and practical home that meets their needs.
As the real estate market continues to evolve, 2 Bed 2 Bath House Floor Plans remain a popular choice for many homeowners. Their practicality, versatility, and customization options make them a timeless and enduring option for those looking to create their dream home. Whether you are a first-time homebuyer or a seasoned homeowner, 2 Bed 2 Bath House Floor Plans offer the perfect combination of comfort and style for modern living.





