1200 Sq Ft House Plans 3 Bedroom: The Perfect Combination of Space and Comfort

Are you in the market for a new home that offers the perfect balance of space and comfort? Look no further than 1200 sq ft house plans with 3 bedrooms. These plans are ideal for small families, couples, or individuals looking for a cozy yet spacious living environment. In this article, we will explore everything you need to know about 1200 sq ft house plans with 3 bedrooms, including how to download and save them for your future reference.

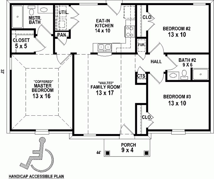
31 1200 Sq Ft House Plans 3 Bedroom 2 Story

Knowledge

When it comes to 1200 sq ft house plans with 3 bedrooms, there are several key features that make them a popular choice among homebuyers. These plans typically include a master bedroom with an ensuite bathroom, two additional bedrooms that can also be used as a home office or guest room, a spacious living room, a well-equipped kitchen, and a dining area. The open-concept layout of these plans creates a seamless flow between the different living spaces, making it easy to entertain guests or spend quality time with your family.

Two Beautiful 3 Bedroom House Plans And Elevation Under 1200 Sq Ft

Another advantage of 1200 sq ft house plans with 3 bedrooms is their versatility. Whether you prefer a traditional, modern, or farmhouse style, there are plenty of design options available to suit your personal taste. From vaulted ceilings and large windows to cozy fireplaces and built-in storage solutions, you can customize these plans to create the home of your dreams.

Furthermore, 1200 sq ft house plans with 3 bedrooms are designed to maximize every square foot of space. With thoughtful layouts and clever storage solutions, you can make the most of your living area without feeling cramped or cluttered. These plans are also energy-efficient, with features such as insulated windows, energy-star appliances, and programmable thermostats, helping you save money on utility bills while reducing your carbon footprint.

3 Bedroom 1200 Sq Ft House Plans Creating A Perfect Balance Of Style

How to download and save it

Downloading and saving 1200 sq ft house plans with 3 bedrooms is easy and convenient. Simply visit a reputable home design website or contact a professional architect to access a wide range of plans to choose from. Once you have selected the plan that best suits your needs and preferences, you can download it in PDF format and save it to your computer or mobile device for future reference.

Conclusion

In conclusion, 1200 sq ft house plans with 3 bedrooms are the perfect combination of space and comfort for individuals and families alike. Their versatile layouts, energy-efficient features, and customizable design options make them a popular choice among homebuyers looking for a cozy yet spacious living environment. Whether you are a first-time homebuyer or a seasoned homeowner, these plans offer everything you need to create the home of your dreams.

Overall, the key strengths of 1200 sq ft house plans with 3 bedrooms lie in their practicality, functionality, and aesthetic appeal. Their target audience includes small families, couples, or individuals looking for a comfortable and efficient living space that meets their lifestyle needs.

As the real estate market continues to evolve, 1200 sq ft house plans with 3 bedrooms remain a popular choice for those seeking a balance of space and comfort in their homes. Whether you are looking to downsize, upgrade, or invest in a new property, these plans offer a timeless and versatile option that is sure to meet your needs and exceed your expectations.

Leave a Reply

Related Post

California House Plans California Style Home Floor Plans

California House Plans Designs: Your Ultimate Guide to Stunning Home Architecture

Are you looking to build your dream home in California? Look no further than California House Plans Designs. These innovative and stylish house plans are designed to capture the essence of California living, from the stunning coastal views to the vibrant city life. In this article, we will explore everything you need to know about […]

1400 SQFT House Plan AutoCAD Drawing Download Now cadbull

House Plans 1400 Sq Feet: The Perfect Blend of Space and Functionality

When it comes to finding the ideal house plan, 1400 square feet strikes the perfect balance between space and functionality. Whether you’re a first-time homebuyer looking for an affordable option or a growing family in need of more room, a 1400 sq ft house plan can cater to a variety of needs. In this article, […]

4 Bedroom 3 Bath House Plans One Story Exploring Design Options For

Discover the Beauty of 4 Bedroom 3 Bath House Plans

Are you in search of the perfect home design that offers ample space for your family and guests? Look no further than the exquisite 4 Bedroom 3 Bath House Plans. This versatile layout provides a harmonious blend of comfort, style, and functionality, making it an ideal choice for modern living. Knowledge When it comes to […]