Italian design house plans are renowned for their exquisite craftsmanship, elegant aesthetics, and timeless appeal. Whether you are looking to build your dream home or renovate your current space, incorporating Italian design elements can elevate your living environment to a whole new level of sophistication and style. In this article, we will explore the beauty and allure of Italian design house plans, providing you with everything you need to know to create a truly stunning living space.
Knowledge
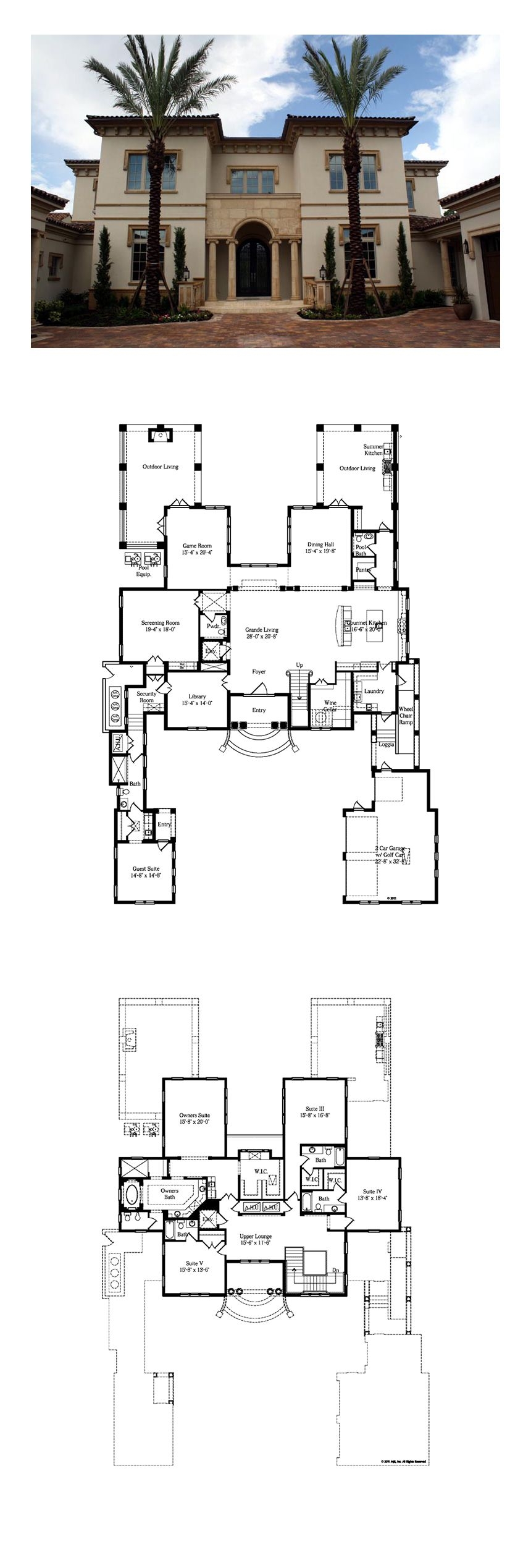
Italian design house plans are characterized by their emphasis on beauty, symmetry, and proportion. Drawing inspiration from centuries of art and architecture, Italian design blends traditional craftsmanship with modern sensibilities to create spaces that are both functional and visually stunning. From intricate detailing to luxurious finishes, Italian design house plans exude a sense of elegance and refinement that is unmatched in the world of interior design.
When it comes to Italian design house plans, attention to detail is key. From the layout of the rooms to the selection of materials and finishes, every aspect of the design is carefully considered to create a cohesive and harmonious living environment. Whether you prefer a classic Tuscan villa or a sleek modern residence, Italian design house plans can be tailored to suit your personal style and preferences.
One of the defining features of Italian design house plans is the use of natural materials such as stone, marble, and wood. These materials not only add a sense of warmth and texture to the space but also lend a timeless quality that will never go out of style. From the grandeur of a marble staircase to the rustic charm of exposed wooden beams, Italian design house plans celebrate the beauty of natural materials in all their forms.
In addition to their aesthetic appeal, Italian design house plans are also known for their functionality and practicality. With an emphasis on open, flowing spaces and thoughtful layouts, Italian design house plans are designed to enhance the way you live and interact with your surroundings. From spacious kitchens to luxurious bathrooms, Italian design house plans prioritize comfort and convenience without sacrificing style.
How to download and save it
Before diving into the world of Italian design house plans, it’s important to consider your specific needs and preferences. Whether you are looking to build a new home from scratch or renovate an existing space, working with a professional architect or designer can help you bring your vision to life. By collaborating with experts in Italian design, you can ensure that your home reflects your unique personality and style while also meeting your practical requirements.
When selecting Italian design house plans, be sure to take into account the size and layout of your property, as well as any zoning or building regulations that may apply. Whether you are building in a rural setting or an urban environment, Italian design house plans can be adapted to suit a variety of locations and architectural styles. By choosing the right plan for your needs, you can create a home that is both beautiful and functional, tailored to your lifestyle and preferences.
Conclusion
Italian design house plans offer a unique blend of elegance, sophistication, and practicality that is perfect for homeowners who appreciate the finer things in life. With their focus on beauty, craftsmanship, and attention to detail, Italian design house plans are ideal for those who want to create a truly luxurious living space that reflects their personal style and tastes.
In conclusion, Italian design house plans are a timeless choice for homeowners who value quality, craftsmanship, and beauty in their living environment. Whether you are building a new home or renovating an existing space, Italian design house plans can help you create a truly stunning residence that will stand the test of time. By incorporating Italian design elements into your home, you can elevate your living space to a whole new level of elegance and sophistication.





