Are you in the process of redesigning your home or looking to purchase a new one? One of the most important elements to consider is the floor plan of the house. A floor plan provides a detailed layout of the property, showcasing the dimensions, room sizes, and overall structure. Finding the floor plan of a house can be a crucial step in making informed decisions about your living space. In this article, we will explore the various methods and tools available to help you locate the floor plan of a house.
Knowledge
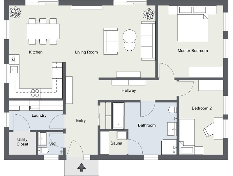
Before diving into the search for a floor plan, it’s essential to understand the significance of this document. A floor plan is a detailed diagram of a property, illustrating the layout of rooms, walls, doors, and windows. It provides valuable information about the size and flow of the space, helping you visualize how furniture and decor will fit into the rooms. Floor plans are commonly used by architects, real estate agents, and homeowners to plan renovations, assess property value, and ensure efficient use of space.
When looking for a floor plan of a house, it’s important to consider the different types of floor plans available. There are various formats, including 2D and 3D floor plans, which offer different levels of detail and visualization. 2D floor plans provide a flat representation of the property, showing the layout from a top-down perspective. On the other hand, 3D floor plans offer a more immersive experience, allowing you to view the property in a three-dimensional space. Depending on your needs and preferences, you can choose the type of floor plan that best suits your requirements.
Additionally, understanding the scale and measurements used in a floor plan is essential for accurate interpretation. Floor plans typically include a scale ratio, such as 1:100 or 1/4 inch to 1 foot, to indicate the size of the rooms and features relative to the actual dimensions. By familiarizing yourself with the scale of the floor plan, you can accurately assess the size and layout of the property.
How to download and save it
Now that you have a clear understanding of the importance of a floor plan and the different types available, let’s explore how to find and access the floor plan of a house. There are several methods you can use to locate a floor plan, depending on the availability of information and resources.
If you are the original owner of the property or have access to the builder or architect, you can directly request a copy of the floor plan. Builders and architects typically keep records of the floor plans they create, making it easier to obtain a copy for your reference.
When purchasing a new home, you can often find the floor plan included in the real estate listing. Many property listings provide detailed information about the property, including floor plans, to help potential buyers visualize the space. You can check online real estate platforms or contact the listing agent to request a copy of the floor plan.
If you are unable to locate the floor plan through the builder or real estate listings, you can visit the local building department for assistance. The building department keeps records of property permits and documents, including floor plans, which can be accessed by homeowners upon request.
There are several online resources and platforms that offer access to floor plans of houses and properties. Websites like Zillow, Realtor.com, and Floorplanner.com provide a database of floor plans that you can search and download for your use. These platforms are convenient for homeowners and designers looking for inspiration and ideas for their home projects.
Conclusion
In conclusion, finding a floor plan of a house is a crucial step in understanding the layout and design of a property. Whether you are renovating your home, purchasing a new one, or simply curious about the space, having access to the floor plan can provide valuable insights and guidance. By utilizing the methods and tools mentioned in this article, you can easily locate and access the floor plan of a house to help you make informed decisions about your living space.
Overall, the key strengths of finding a floor plan of a house lie in the ability to visualize the property layout, plan renovations effectively, and maximize the use of space. This article is targeted towards homeowners, architects, real estate agents, and anyone interested in understanding the layout and design of a house.
As the real estate market continues to evolve, having access to the floor plan of a house can give you a competitive edge in the buying and selling process. Whether you are looking to create your dream home or evaluate property value, a floor plan is an invaluable tool that can help you achieve your goals.




