Are you in the market for a new home and looking for something that offers convenience, functionality, and style? Look no further than house plans with garage on side entry. This innovative design not only adds curb appeal to your home but also provides practical benefits that you’ll love. In this article, we’ll delve into everything you need to know about house plans with garage on side entry, from its unique features to how to download and save the perfect plan for your dream home.
Knowledge
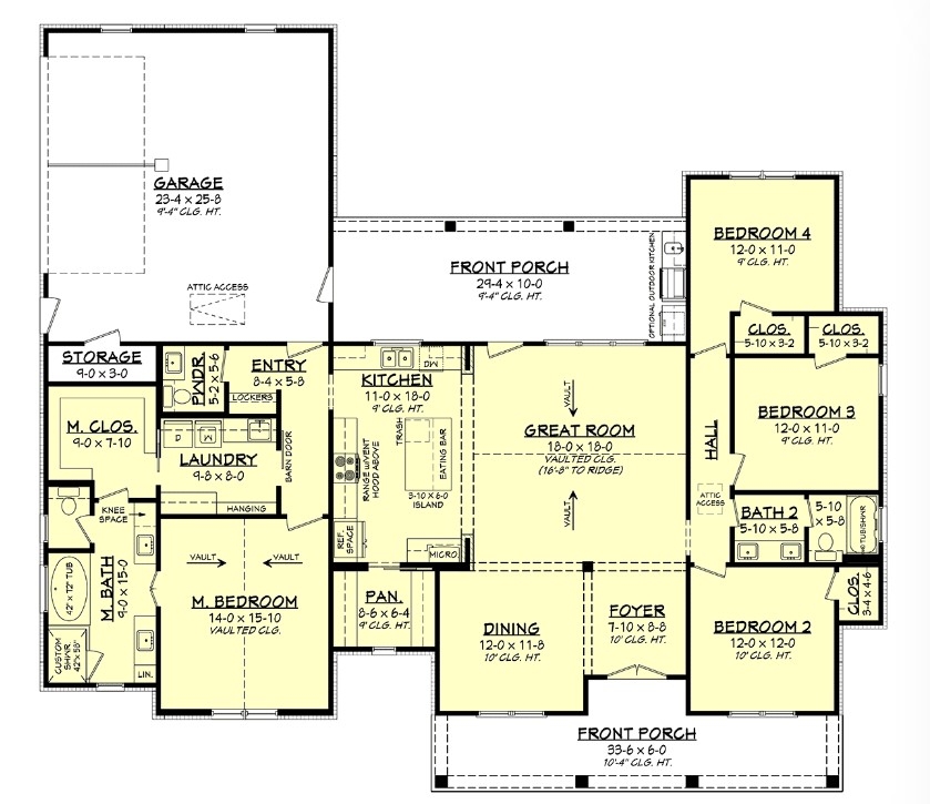
House plans with garage on side entry offer a modern twist on traditional home designs. By positioning the garage on the side of the house rather than the front, these plans create a sleek and stylish facade that enhances the overall look of your home. Not only does this design choice add to the curb appeal of your property, but it also offers a range of practical benefits. With the garage situated on the side of the house, you can enjoy a larger front yard, more privacy, and improved natural light in your living spaces.
When choosing a house plan with garage on side entry, you’ll have a variety of options to consider. From single-story ranch homes to two-story colonial designs, there are endless possibilities to suit your style and needs. Many house plans with garage on side entry also include additional features such as covered porches, outdoor living spaces, and open-concept interiors. Whether you’re looking for a cozy cottage or a spacious family home, you’re sure to find the perfect plan to meet your requirements.
One of the key advantages of house plans with garage on side entry is the convenience they offer. With the garage located on the side of the house, you’ll have easy access to your vehicles without disrupting the aesthetic of your home’s facade. This design choice also allows for a more functional driveway layout, providing ample space for parking and maneuvering vehicles. Additionally, house plans with garage on side entry often feature attached or detached garages, giving you the flexibility to choose the configuration that works best for your lifestyle.
How to download and save it
When it comes to selecting the perfect house plan with garage on side entry for your new home, there are a few key steps to keep in mind. Start by browsing online resources and home design websites to explore a wide range of house plans and styles. Once you’ve found a plan that catches your eye, you can often download it directly from the website for easy access and reference.
Before downloading a house plan with garage on side entry, be sure to review the details carefully. Pay attention to the layout, dimensions, and features included in the plan to ensure it meets your needs and preferences. You may also want to consult with a professional architect or designer to customize the plan to suit your specific requirements and budget.
Once you’ve downloaded the perfect house plan with garage on side entry, be sure to save it in a secure location for future reference. Consider creating a digital folder or binder to store all of your home design ideas and inspiration in one place. This will make it easy to access and compare different plans as you move forward with your new home construction or renovation project.
Conclusion
In conclusion, house plans with garage on side entry offer a stylish and practical solution for modern homeowners. With their unique design features and functional benefits, these plans are perfect for those looking to enhance the curb appeal and functionality of their home. Whether you’re building a new home or renovating an existing property, house plans with garage on side entry provide a range of options to suit your style and needs.
Key strengths of house plans with garage on side entry include their convenience, aesthetic appeal, and flexibility in design. This style of home plan is ideal for families, retirees, and anyone looking for a modern and functional living space. By choosing a house plan with garage on side entry, you can enjoy the best of both worlds – a stylish facade and practical layout that meets your needs.
As the housing market continues to evolve, house plans with garage on side entry are becoming increasingly popular among homeowners and builders alike. With their innovative design and versatile features, these plans offer a fresh take on traditional home layouts that appeal to a wide range of tastes and preferences. Whether you’re a first-time homebuyer or a seasoned property owner, house plans with garage on side entry are a smart choice for your next home project.





