Are you in the market for a spacious and luxurious home? Look no further than a 5 bedroom house plan design. With ample space for families, guests, home offices, and more, a 5 bedroom house plan offers versatility, functionality, and style. In this comprehensive guide, we will delve into everything you need to know about 5 bedroom house plan designs, from layout options to key features, and how to download and save your favorite designs.
Knowledge
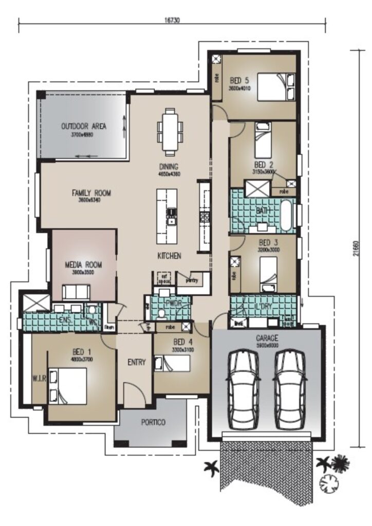
When it comes to 5 bedroom house plan designs, there are endless possibilities to explore. From traditional layouts to modern open concepts, each design offers its unique charm and appeal. The key to choosing the right plan lies in understanding your needs, preferences, and lifestyle. Consider factors such as family size, daily activities, entertaining needs, and future growth when selecting a 5 bedroom house plan design.
One popular option is the two-story 5 bedroom house plan, which offers a spacious layout with bedrooms located on the second floor for added privacy. These designs often feature a master suite with ensuite bathroom, multiple bathrooms, a central living area, and a kitchen with an island for added functionality.
For those who prefer single-story living, a ranch-style 5 bedroom house plan may be the perfect fit. These designs offer easy access to all rooms on one level, making them ideal for individuals with mobility issues or those who prefer a seamless flow between living spaces.
Other features to consider when choosing a 5 bedroom house plan design include outdoor living spaces, such as a patio or deck, a home office or study, a media room, a guest suite, and ample storage options. Customization is key to creating a home that suits your needs and reflects your personal style.
Overall, 5 bedroom house plan designs are versatile, functional, and stylish, making them an excellent choice for families, homeowners who love to entertain, and those who require extra space for work or hobbies.
How to download and save it
When it comes to selecting a 5 bedroom house plan design, there are several options available for downloading and saving your favorite layouts. Many websites offer a wide selection of pre-designed house plans that can be purchased and downloaded instantly. Simply browse through the available designs, select your favorite 5 bedroom house plan, and follow the instructions to purchase and download the plan.
Alternatively, you can work with a professional architect or designer to create a custom 5 bedroom house plan that meets your specific needs and preferences. Provide your ideas, requirements, and budget to the designer, and they will create a unique plan that is tailored to your lifestyle and aesthetic preferences.
Once you have selected or created your ideal 5 bedroom house plan design, be sure to save it in a secure location for future reference. Whether in digital or hard copy format, having your house plan on hand will make the construction or renovation process smoother and more efficient.
Conclusion
In conclusion, 5 bedroom house plan designs offer a perfect blend of space, functionality, and style for homeowners looking for a spacious and luxurious living environment. With a variety of layout options, features, and customization possibilities, a 5 bedroom house plan can be tailored to suit your unique needs and preferences.
Key strengths of 5 bedroom house plan designs include ample space for families, guests, and hobbies, versatile layout options, and the potential for customization to create a truly personalized home.
5 bedroom house plan designs are ideal for families, homeowners who love to entertain, individuals who work from home, and anyone looking for a comfortable and stylish living space. Whether you choose a traditional two-story design or a modern open concept layout, a 5 bedroom house plan offers endless possibilities for creating the home of your dreams.
Overall, 5 bedroom house plan designs are a popular choice for those seeking a spacious and luxurious living environment that caters to their unique needs and preferences. With careful planning, customization, and attention to detail, a 5 bedroom house plan design can provide the perfect backdrop for a happy and fulfilling lifestyle.





