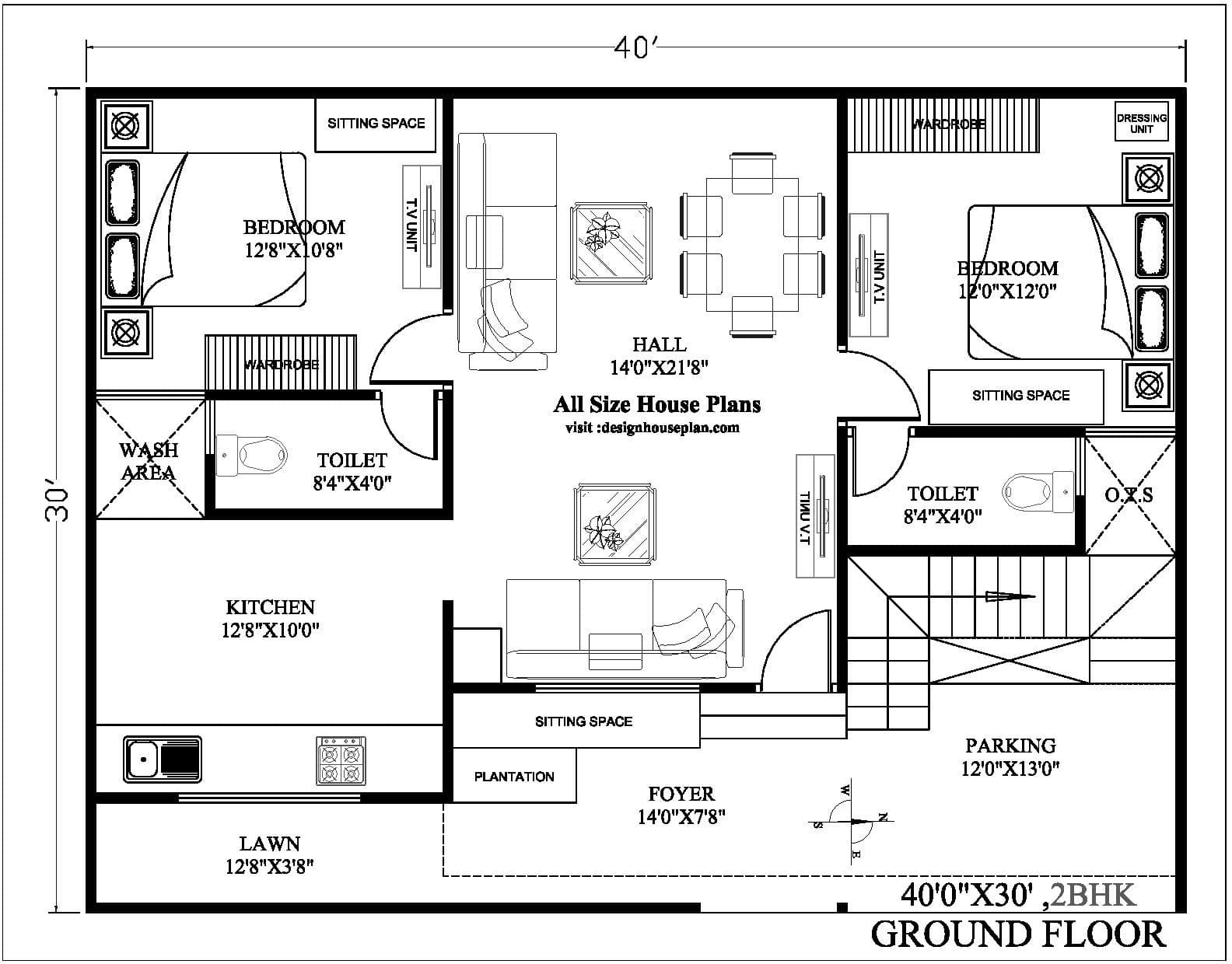
When it comes to designing a dream home, the 40X30 house plan offers a perfect blend of spaciousness and functionality. With ample room for customization and a layout that maximizes every square foot, this type of house plan has become increasingly popular among homeowners. In this article, we will delve into the world of 40X30 house plans, exploring their appeal and what makes them a great choice for anyone looking to build their dream home.
Knowledge
Let’s start by diving into the key features of 40X30 house plans. These plans typically offer around 1,200 square feet of living space, making them ideal for small to medium-sized families. The layout often includes two to three bedrooms, multiple bathrooms, a spacious living room, a kitchen with a dining area, and sometimes even a small backyard or deck.
One of the main advantages of a 40X30 house plan is its versatility. Whether you prefer a traditional or modern style, there are plenty of design options to choose from. From open-concept layouts to more compartmentalized designs, you can customize the plan to suit your personal taste and lifestyle.
In terms of functionality, 40X30 house plans are designed to make the most of every inch of space. With thoughtful layouts and efficient use of materials, these plans create a comfortable and inviting living environment. Whether you’re looking for a cozy family home or a stylish bachelor pad, a 40X30 house plan can cater to your needs.
How to download and save it
Downloading and saving a 40X30 house plan is a simple process. Many websites offer a wide selection of house plans, including 40X30 designs, available for download. Simply browse through the options, choose the plan that best fits your needs, and follow the instructions to download it to your device. Once you have the plan saved, you can work with a builder or architect to bring your dream home to life.
Conclusion
In conclusion, 40X30 house plans are a fantastic choice for anyone looking to build a comfortable and stylish home. With their versatile layouts, efficient use of space, and customizable design options, these plans offer the perfect balance of form and function. Whether you’re a first-time homebuyer or a seasoned homeowner, a 40X30 house plan can provide you with the ideal living space to suit your needs.
Overall, the key strengths of 40X30 house plans lie in their flexibility, functionality, and aesthetic appeal. They are well-suited for a variety of homeowners, from young families to empty nesters, making them a popular choice in the housing market.
As we look to the future, the demand for well-designed and practical living spaces continues to grow. 40X30 house plans offer a solution that meets the needs of modern homeowners, providing a comfortable and stylish living environment that can be tailored to individual preferences. Whether you’re building a new home or renovating an existing one, considering a 40X30 house plan could be the key to creating your dream living space.





