Are you in search of the ideal house plan that offers a perfect balance of space and comfort? Look no further than the 3 Bedroom 1000 Sq Ft House Plans. These plans are designed to provide you with ample living space while ensuring that every square foot is utilized efficiently. In this article, we will explore everything you need to know about these house plans, from their layout and design to their appeal and functionality.
Knowledge
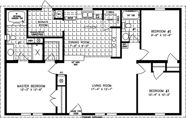
When it comes to 3 Bedroom 1000 Sq Ft House Plans, the key is in the layout. These plans typically feature a master bedroom with an ensuite bathroom, two additional bedrooms that share a bathroom, a spacious living room, a kitchen with a dining area, and a laundry room. The open-concept design of these plans creates a seamless flow between the different living spaces, making the house feel larger than its square footage suggests.
One of the main advantages of opting for a 3 Bedroom 1000 Sq Ft House Plan is the flexibility it offers. Whether you are a small family looking for a cozy home or a couple in search of a starter house, these plans can be easily customized to meet your needs. From adding a deck or a patio to expanding the kitchen or the living room, the possibilities are endless.
Furthermore, these house plans are designed with functionality and efficiency in mind. The use of space-saving techniques such as built-in storage solutions, multipurpose furniture, and energy-efficient appliances ensures that every inch of the house is utilized effectively. This not only maximizes the living space but also reduces maintenance and utility costs in the long run.
How to download and save it
Conclusion
In conclusion, the 3 Bedroom 1000 Sq Ft House Plans are the perfect choice for those looking for a comfortable and functional living space. With their efficient layout, customizable design, and cost-effective features, these plans appeal to a wide range of homeowners. Whether you are a first-time buyer, a growing family, or empty nesters looking to downsize, these house plans offer the perfect balance of space and comfort.
Overall, the target audience for these plans includes individuals and families who value practicality, efficiency, and affordability in their home design. By opting for a 3 Bedroom 1000 Sq Ft House Plan, you can enjoy the benefits of a well-designed and comfortable living space without compromising on style or functionality.
As the housing market continues to evolve, the demand for smaller yet functional homes is on the rise. The 3 Bedroom 1000 Sq Ft House Plans cater to this growing trend by offering a practical and stylish solution for modern living. With their thoughtful design and cost-effective features, these plans are sure to remain popular among homeowners for years to come.





